CA143GA

  • Programme > Abri de jardin et atelier de bricolage

  • MOA > particuliers

  • Carrières-sur-Seine - 78

  • Surface > 18m2

  • Budget travaux estimé : 22k€

  • Chantier prévu pour début 2026

Une maison carillonne située dans la zone protégée du centre-ville. Le besoin de construire un abri pour ranger outils et mobilier de jardin pouvant accueillir un atelier. La volonté de concevoir une cabane à l’architecture soignée répondant à la singularité de la maison et de son contexte.

L’atelier défend la qualité architecturale pour tous types de projet et à toutes les échelles, et ce avec le même degré de rigueur. 

Une étude particulière était nécessaire pour construire cet abri de jardin et atelier. Située dans « le village » de Carrières-sur-Seine, sur un terrain en recul de la rue, cette maison toute en longueur est caractérisée par ses façades en pierre, tantôt enduites à la chaux, tantôt brutes, soulignées par des modénatures et appuis de fenêtres en briques apparentes. Les volets et gardes-corps, en ferronnerie verte ou en bois peint dans une teinte similaire, contribuent au cachet de la maison.

Les enjeux du projet étaient principalement l’intégration avec l’existant : la forme de la parcelle, la continuité de l’allée gravillonné et la séquence d’entrée sur le site, l’architecture du lieu, l’auvent de stationnement, etc.

L'abri de jardin-atelier est implanté dans la continuité de l'auvent de stationnement existant, auquel il répond par une toiture monopente en zinc posée traditionnellement avec des joints debouts. Édifié en maçonnerie porteuse, l'abri est un volume parallélépipède qui donne l'illusion d'un alignement avec l'auvent par un jeu d'angles et de perspectives. Les bâtiments ainsi implantés créent une cour qui renforce la séquence d'entrée dans la maison.

Comme la maison, les murs sont enduits à la chaux claire et les façades sont soulignées de modénatures et appuis de fenêtres en briques de terre cuite. Pour renforcer le caractère d’atelier, une grande verrière en serrurerie verte est percée dans la façade apportant une lumière naturelle bienvenue.    

L’intérieur est entièrement revêtu de panneaux bois contreplaqué, renforçant l’image de l’abri de jardin et apportant un caractère chaleureux pour pouvoir y bricoler en toute tranquillité.

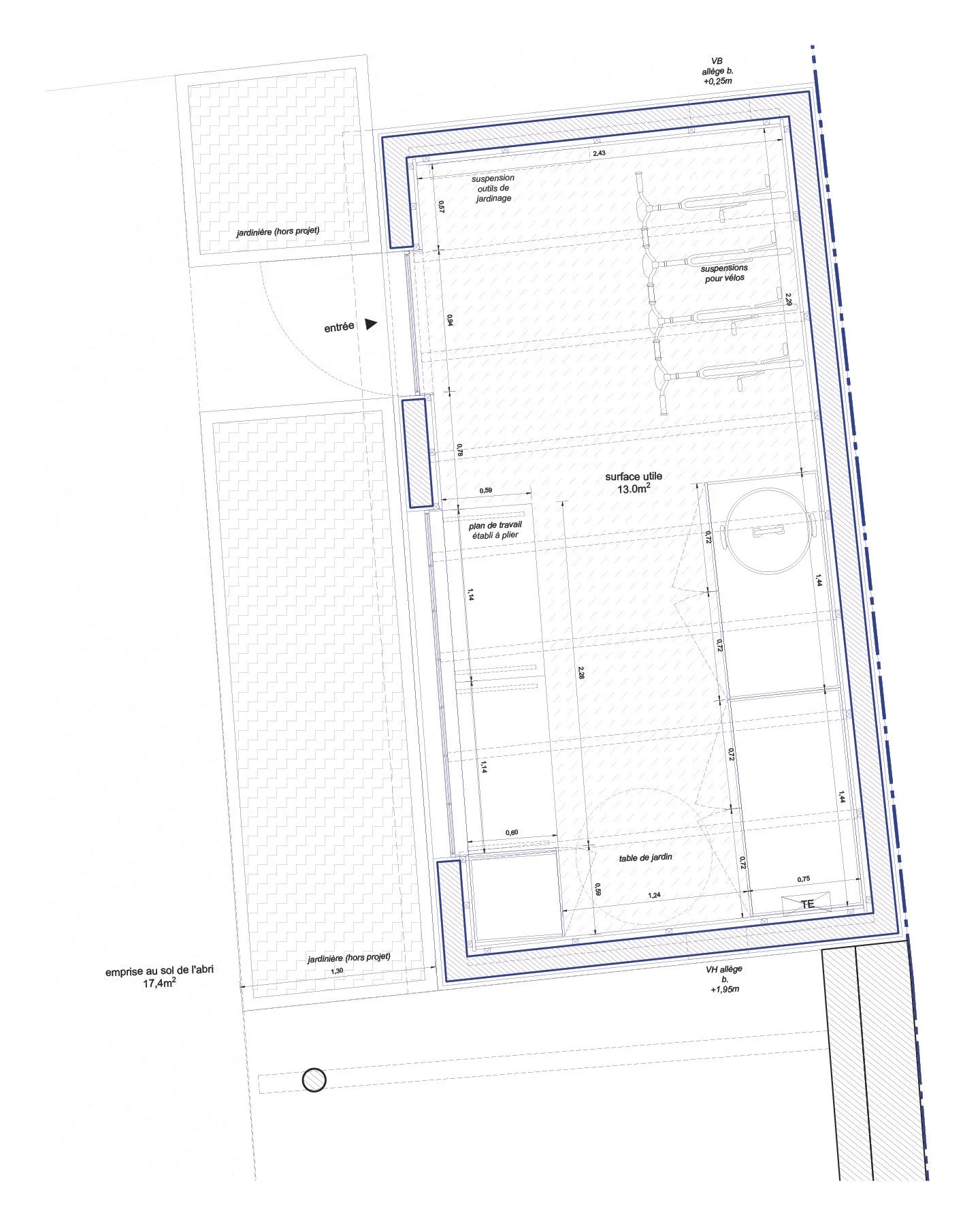
 Derrière un plan d’aménagement intérieur efficace, se cachent des réflexions et des échanges précis avec le client. Chaque équipement du jardin doit trouver sa place pour l’hiver (la table, les chaises, les transats, le barbecue, les outils, les vélos …) – un jeu de Tetris intelligent. Pour gagner en surface lors des périodes hivernales, le plan de travail a été conçu de manière amovible. De grands placards toute hauteur, dessinés sur-mesure, offrent de larges rangements. Enfin, des systèmes d’accroche en bois ont été pensés, dessinés et fabriqués pour optimiser l’espace restreint, pour ranger les vélos et les outils de jardinage.

 Une réponse juste, une architecture lisible et essentielle, sans surenchère.

Précédent
Précédent

SA20TR

Suivant
Suivant

CH59CA